يعتبر المصعد وسيله انتقال بين دورين او اكثر باستخدام صندوق او علبه او عربه تتحرك بشكل رأسى منضبط تماما او بميلان لا يزيد عن ١٥ درجه ولسرد مكونات المصعد الاساسيه لابد من الاخذ فى اعتبارنا ما يلى
- - لا تتفق كل المصاعد فى نفس طريقه التركيب او نمط التشغيل
- - لا تتفق كل المصاعد فى نفس المميزات او التحسينات
ولذا سنعرض للمكونات الاساسيه للنوع القياسى للمصاعد وهو مصعد جر او شد الحبال اما المصعد الهيدروليكى سنتناوله فى تدوينه مستقله
انواع المصعد القياسى من حيث الحموله
- النوع الاول يستخدم فى تحريك حمل من ٣٢٠ الى ٨٠٠ كيلو جرام
- النوع الثانى لتحريك حمل من ٨٠٠ الى ١٦٠٠ كيلو جرام
الابعاد القياسيه للمصعد
يمكن اختصار وضع العربه مع ثقل الموازنه مع الباب الى اربع حالات ولكل حاله ابعادها وكذلك عدد الاشخاص التى يمكن ان تحتويهم مساحه العربه
بالتالى يتحدد الوزن المفروض نقله بين الادوار
- الحاله الاولى
ثقل موازنه خلف العربه لكن فتحه الباب ليست فى المنتصف بل تكون فى احد الناحيتين
- الحاله الثانيه
الثقل خلف العربه وفتحه الباب فى المنتصف
- الحاله الثالثه
الثقل بجانب العربه وفتحه الباب ليست بالمنتصف
- الحاله الرابعه
الثقل بجانب العربه وفتحه الباب فى المنتصف
المكونات الاساسيه للمصعد
يمكن اجمال المكونات الاساسيه اللازمه لمصعد فى البنود التاليه
- عربه المصعد
- مسار الحركه
- اله التحريك او المحرك
- نظام التحكم والتشغيل
- نظام الامان والحمايه
عربه المصعد
والآن سنوضح بمزيد من التفاصيل عربه المصعد ومكوناتها وما تشتمل عليه
انواع عربه المصعد
يمكن تقسيم العربات من حيث فتحات الدخول الى ثلاث انواع
- عربه طبيعيه اى مدخل واحد
- عربه ذات فتحتان للدخول
- عربه ذات ٣ فتحات
الابعاد القياسيه للعربه
الجدول التالى يوضح الابعاد والوزن وعدد الاشخاص
عد الاشخاص التى ستحملهم العربه =الوزن المقنن مقسوما على ٨٠ حيث ٨٠ هو متوسط وزن الفرد
اهم محاور قياس العربه
العرض - العمق - الارتفاع
عرض العربه هو طول الخط الافقى بين حائطى العربه اليمين واليسار
والعمق فهو طول الخط الافقى بين مدخل العربه وظهرها
اما الارتفاع فهو طول الخط الرأسى بين ارضيه العربه وسقفها
مكونات عربه المصعد
- حامل حديدى مكون من ٣ انواع من القطع الحديديه تكون فى النهايه اطار معدنى
- الصندوق وهو العلبه التى تستوعب بداخلها الوزن المراد نقله
- بعض الاضافات على العربه وتشمل كرسى يحافظ على ثبات تحرك العربه على دليل الحركه ومشغل باب العربه الداخلى واداه لغلق هذا الباب بالاضافه الى واقى لفنى الصيانه من السقوط
- حامل العربه
هو اطار معدنى يحمل العلبه بداخله ويتم تعليق حبال الجر فيه لانه من معدن يتحمل الاجهاد الميكانيكى الناتج عن قوى الشد والوزن فليس من الممكن تعليق الحبال مباشرة بالعلبه لانها غالبا من خامات رقيقه ألصاج والاستانلس والخشب فلا يمكن ان تتحمل الاثار الناتجه عن التعليق او الاهتزاز اثناء الحركه
اما عن انواع الاطار الحامل لعلبه المصعد فهو نوعين على حسب نظام تعليق حبال الجر به النوع الاول تعليق مباشر ١:١ اى يتم تعليق طرف الحبل بحامل العلبه مباشرة والطرف الاخر بثقل الموازنه والنوع الثانى تعليق غير مباشر فيتم تركيب طارة او اثنين على حامل العلبه ويتحرك الحبل على الطارات وبدايات ونهايات الحبال مربوطه فى نقاط ثابته بعيد عن العربه او الثقل وقد يوجد بحامل العربه نظام تعشيق كما وضحته فى تدوينه منظم السرعه اوا البراشوت يمكنك الرجوع الى فهرس موضوعات المدونه للوصول اليها
المكونات الاساسيه للاطار الحامل للعلبه يتكون من ٤ قطع اثنين بشكل افقى واحده علويه والاخرى سفليه واثنان بشكل رأسى واحده يمين والاخرى يسار يتم تربيطهم جميعا فتتكون قطعه واحده كإطار معدنى
القطعه العلويه
وتكون اعلى العلبه ويتم تعليق الحبال بها اذ كان التعليق مباشر او يتم تركيب طارتين او طارة دوارة تدور ٣٦٠ درجه فى الدورة الواحده اذا كان تعليق غير مباشر واحيانا يتم تركيب نظام التعشيق الميكانيكى مع دليل الحركه فى هذه القطعه
القطعه السفليه
وتكون اسفل العلبه بحيث تجلس العلبه عليها و قد يوجد بها نظام التعشيق او لا يوجد واحيانا يركب بها طارتين من اسفل لتتحرك الحبال عليها فى بعض تطبيقات مصعد بدون غرفه محرك او مصعد بدون صندوق تروس
اما القائمان الجانبيات فهما قطع معدنيه طولها يتناسب مع ارتفاع العلبه ويتم تربيطهما فى القطعتين العلويه والسفليه ليكتمل الاطار الكلى
- اما عن علبه المصعد او الغمرة والمسماه كابينه هى الحيز الذى يستوعب الاشخاص بداخله فلابد ان تكون بمثابه جدار عازل للشخص عن خارج العلبه منعا للسقوط او الارتطام بمحتويات مسار الحركه فلابد ان تكون جدرانها كامله الانسداد عدا فتحه الدخول التى تؤمن بواسطه ادوات مخصوصه كما يجب ان تحتوى العلبه على ارضيه صلبه بالاضافه الى تهويه مناسبه منعا للاختناق واضائه لتتضح الرؤيه
مكونات علبه المصعد:
الارضيه - السقف - الحوائط - المدخل - السقف المستعار - المقبض - لوحه التشغيل - فتحه الانقاذ - شرفه الحمايه لفنى الصيانه - مانع السقوط من الباب الخارجى
ارضيه العلبه
هى عبارة عن قطع حديديه متوازيه يجمعها اطار حديدى يتم تكسيتها بلوح من الصاج او الخشب السميك ومقاسات الارضيه هى عرض العلبه وعمقها ويجب ان تتحمل الضغط الناتج عن التشغيل الطبيعى وكذلك التعشيق عند الضروره كما يتم تغطيتها بقطعه من الجيرانيت او الرخام او الواح بلاستيكيه خاصه بحيث تتحمل الوقوف عليها ويجب توافقه مع الشكل الجمالى للحوائط والسقف المستعار
السقف
عبارة عن غطاء للعلبه يتحمل وقوف شخصين عليه لاجراء عمليات الصيانه يستوعب فتحه الطوارئ وكذلك مروحه لتهويه العلبهالحوائط
هى جدران مكونه من الواح من الصاج متراصه ومرتبطه ببعضها فى النهايه تشكل ٣ حوائط كحاجز واقى لحمايه الشخص وعزله عن خارج العلبه وتتنوع الالواح نفسها الى ثلاث انواع
١ الواح متجانبه تتراص بجانب بعضها
٢ الواح خلفيه
٣ لوح حاص بلوحه التشغيل
الالواح المتجانبه هى غالبيه الالواح اما الالواح الخلفيه فهما لوحين فقط يتم تركيبهما فى الخلف فى الركنين اليمين واليسار فقط اما لوح لوحة التشغيل فهو مضاف اليه تكسيحه من الصاج من الخلف لتمرير اسلاك التوصيل الى فتحه من الداخل وصولا الى لوحه التشغيل فى النهايه يتم تكسيه الحوائط من الداخل بألوح من الاستانلس او الخشب بأشكال مختلفه او يتم اجراء عمليات الدهان على الحوائط مباشرة
مدخل العلبه
عبارة عن ثلاثه الواح قائمان جانبيان وقطعه عرضيه تجمعهما من اعلى ويحتوى ايضا على عتبه من الاسفل تصميمها يتناسب مع نوع الباب الداخلى ولابد ان يتناسب عرض وارتفاع المدخل مع مقاسات الباب الداخلى والخارجى ايضالوحة التشغيل
عبارة عن لوح محصوص يتم عمل فراغات فيه تستوعب كلا من ازرار تسجيل طلبات الادوار وشاشه بيان رقم الدور واتجاه الحركه وزر ايقاف اضطرارى وزر جرس انذار للطوارئ وازرار تحكم فى الباب الداخلى وزر انارة وزر مروحه وتتميز لوحة التشغيل بسهوله الفك والتركيب من الداخل لاجراء التوصيلاتالمقبض
هو الجزء الذى يتم امساك الراكب به خصوصا كبار السن والذين يحتاجون للمساعده فى الوقوف او الدخول للعلبه وتتنوع اشكال وخامات المقبض غالبا ما يتم تركيبه فى جهه واحده واحيانا يتم تركيبه فى جهتين او ثلاث اما عن انواعه فهى نوعين نوح مستدير اوشبه مستدير والنواع الثانى مسطحالسقف المستعار
هو المصدر الاساسى لعبور الضوء الى داخل العلبه وتتنوع تصميماته بحسب نظام الاضائة والشكل الجمالى لداخل العربه وتتنوع الاضائه الى نوعين اضائه غير مباشرة عن طريق مصابيح الفلوروسنت اعلى السقف المستعار او اضائه نقطيه مباشرة من اسفلهباب او غطاء فتحه الانقاذ
يتميز بسهوله التعامل معه فى حالات الطوارئ ويتم فتحه من الداخل بمفتاح خاص ومن الخارج مباشرة بدون مفتاح ويتم تركيب نقاط تلامس عليه ويتم توصيلها بدوائر الامان للايقاف المصعد نهائيا عند فتح هذا الباب او الغطاء اما عن ابعادها القياسيه فهى ٤٠*٦٠ بحيث تمرر من خلالها شخصا او دعما لهالشرفه الواقيه
هى لعزل فنى الصيانه عن حوائط البئر او الثقل ومانعه من انزلاقه خارج نطاق سقف العربهالحاجز السفلى
هو لوح معدنى يتم تركيبه اسفل عتبه المدخل يعمل على حجب رؤيه فراغ البئر من اسفل العربه عندما تعلو عن الوقوف المضبوط على مستوى الدور بالاضافه الى منع انزلاق القدم ايضا فى مثل هذه الحالات ويتراوح ارتفاعها من ٢٠ الى ٥٠ سم
| بعض انواع الباب الداخلى |
- اضافات عربه المصعد
سيجرى الحديث الان عن الباب الداخلى وكراسى الكابينه
الباب الداخلى
ان الهدف من وجود باب للعربه هو تأمين الشخص الموجود داخلها من الاقتراب من مدخل الكابينه منعا للانحسار او الارتطام اثناء الحركه وتختلف حالات مدخل العربه الى ثلاث حالات رئيسيه: لايوجد باب - باب يغلق يدويا - باب يغلق تلقائيا بمشغل كهربى عندما لا يوجد باب للعربه لا يغيب التأمين حيث ان عوامل السلامه هى الاساس قبل بدأ الحركه فكيف يتم التأمين فى حاله غياب الباب ؟ ان الهدف هو منع الاقتراب من المدخل فيتم التأمين بوسيلتين فى هذه الحاله وهما تأمين عتبه المدخل حيث تكون عتبه متحركه لاسفل وليست ثابته توضع تحتها ليات عند وضع الشخص قدمه على العتبه اثناء الدخول او الخروج او الحركه ستهبط مسافه ليست بالكبيرة لذا سنعمد الى وضع نقاط تلامس كهربيه اسفل العتبه مباشرة تستعمل لفصل الحركه عند الضغط على العتبه والوسيله الثانيه هى تأمين فراغ فتحه المدخل بحساس ضوئى سواء كان شعاع ضوئى واحد يركب على ارتفاع ٥٠ سم من العتبه وهذا الحساس عبارة عن قطعه ارسال واخرى استقبال يتم تركيبهما على جانبى المدخل اذا اقترب شخص او طفل من المدخل سيقطع الشعاع وسيتم فصل الحركه ومن الافضل استخدام ستارة ضوئيه كامله لتأمين كل فراغ فتحه المدخل من الاقتراب حاله الباب اليدوى: يوجد باب لكنه يغلق يدويا قد يكون باب خشبى او معدنى سواء كان من شرائح الصاج او الاستانلس او الالوميتال او البلاستيك المضغوط سيتم تأمين الباب هنا بنقاط تلامس حتى لا يعمل المصعد الا اذا تم اغلاق الباب بواسطه الشخص الموجود داخل العربه فستوضع نقاط تلامس لكل شق من الباب ولكن مع الاخذ فى الاعتبار اثناء استدعاء المصعد من خارج العربه لن يتحرك عندما يكون الباب الداخلى مفتوحا وهذه اشكاليه تم التغلب عليها بتوفير دوائر كهربيه تحس بوجود شخص داخل العربه من عدمه تثبت غالبا فى هذه الحاله اسفل ارضيه العربه فتحس بوقوف الشخص عليها فاذا وقف احد ما عليها لن يتحرك المصعد الا بعد غلق الباب الداخلى اما فى حاله عدم وجود شخص بالكابين وتم الاستدعاء من الادوار فسيتحرك المصعد بدون الحاجه لاغلاق الباب الداخلى لعدم وجود شخص داخلها اما لو تم اغلاق الباب تلقائيا بواسطة ليات مخصوصه فلسنا فى حاجه لدائرة الاحساس بوجود شخص داخل العربه حاله باب داخلى بمشغل كهربى : تتعدد انواع الابواب الداخليه ذاتيه الفتح والاغلاق فمنها باب مفصلى يفتح من المنتصف ويخزن قسمى الباب على جانبى المدخل ومنها ما يفتح من احد الجانبين ويتحرك قسمى الباب الى الجانب الاخر كما تختلف هذه الانواع من حيث التغذيه الكهربيه فمنها ما يتم تغذيته ٢٢٠ فولت او ٣٨٠ فولت سواء فاز واحد وارضى او ثلاث فازات كما تختلف من حيث السرعات فمنها ما هو سرعه واحده او سرعتين او متعدد السرعات اما عن مشغل الباب الكهربى فهو عبارة عن محرك بالاضافه الى سيور نقل الحركه لتحريك اقسام الباب بالاضافه الى دوائر كهربيه مثل نهايات اشواط الفتح والاغلاق ودائرة تأمين بحيث لا يتحرك المصعد الا بعد اغلاق الباب تماما كما يوجد احيانا بمشغل الباب بطاريات شحن كهربى حتى يفتح الباب من تلقاء نفسه عند انقطاع التيار ويوجد مشغل الباب على سطح العربه فوق المدخل مباشرة ويوجد مجرى او مسار حركه احزيه الباب بالاسفل بدلا من عتبه الباب
كراسى الكابينه :
يتم عزل الجزء المتحرك مع دليل الحركه بماده بلاستيكيه تتحمل الاحتكاس المستمر مثل التفلون حتى لا يحتك الكرسى مباشرة بالدليل فتنتج مشاكل غير مرغوب فيها كالاصوات والخشونه والتآكل يعتبر هذا الحشو بمثابه عمل الغضاريف بين مفاصل الانسان ويوجد عده انواع من الكراسى فمنها البلاستيك المضغوط او المعدنى المخروط او شرائح مجمعه اما الحشوات فتختلف بحسب تصميم وابعاد الكرسى ومنها ما هو عجلات تدور على الدليل ومنها ما هو حشوات ثابته
| كرسى بعجلات |
| كرسى بحشوة ثابته |
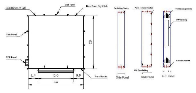
بئر المصعد مواصفاته ومحتوياته
يعتبر البئر الخاص بالمصعد فراغ رأسى فى ارتفاع المبنى تتحرك العربه فيه رأسيا صعودا وهبوطا للوصول لطوابق المبنى كلها فى المبانى قليله او
متوسطه الارتفاع اوبعض الطوابق فى حالات المبانى المرتفعه او شاهقه
الاتفاع
محددات قياس البئر
هى العمق والعرض والارتفاع
- فعمق البئر هو المسئول عن تحديد عمق العربه المسماه بالكابينه اى المسافه من فتحه الباب لجانب العربه المواجه للباب
- العرض كذلك يحدد عرض الكابينه وهو المسافه بين جانبى العربه اليمين والشمال
- اما ارتفاع البئر فهو المسافه التى تتحرك فيها العربه للوقوق على الدور الارضى والدور الاخير وبالطبع ما بينهما من ادوار ولكن ينبعى توافر مسافه سقوط للبئر اسفل مستوى الدور الارضى تقدر بواحد متر او على الاقل ٨٠ سم لكى تستوعب الاجزاء السفليه للعربه عند الوقوف على الدور الارضى كذلك المخمدات اللازمه لاعاقه نزول العربه كثيرا عن مستوى الدور الارضى وكذا يلزم توافر نفس المسافه فوق الدور الاخير لاستيعاب الاجزاء العلويه للعربه حتى لا ترتطم بسقف البئر
تكون جوانب البئر اربع جوانب احدها يحتوى فتحات الابواب فى الادوار من الممكن ان تكون هذه الجوانب حوائط خرسانيه او من الطوب او كمرات خرسانيه لكل دور
وقد يكون البئر هيكل معدنى خارجى او كمرات حديديه لاستقطاب جزء من مسقط النور للمبنى او يكون بئر سلم يتم تركيب المصعد داخله
محتويات بئر المصعد:
- اعمده او دلائل الحركه
- ثقل الموازنه
- حبال الجر
- الابواب الخارجيه
- مخمدات الحركه للعربه والثقل
جدير بالملاحظه ان مجرى حديثنا فى هذا الموضوع عن المحتويات الميكانيكيه فقط
دلائل الحركه
عبارة عن قضبان حديديه تشبه نوعا ما قضبان القطارات مع الاختلاف فى الابعاد يتم صقلها وتفريزها على شكل حرف T فيتكون للعامود جزء يتحرك كرسى الكابينه او ثقل الموازنه عليه والجزئ الثانى مسمى بظهر العامود يعطى الجزء الاول عصب وصلابه منعا من الانحناء او التقوس
طول القضيب الواحد ٥ متر يوجد باحد بطرفيه تفريزه ذكر وبالطرف الاخر انثى ويتم تركيب القضبان فوق بعضها ذكر احد القضبان فى انثى القضيب الاخر او العكس
تكون القضبان على جوانب البئر على مقاسات معينه وثابته طول مسافه ارتفاع البئر بدون ترحيلات نهائيا حتى تحفظ مسار حركه العربه مع الابواب الخارجيه ومع ثقل الموازنه وكذلك لحفظ مسار حركه الثقل مع العربه والجدران ايضا
فكيف نحافظ على ثبات الابعاد مع الاخذ فى الاعتبار ان غالبيه المبانى توجد بها نسبه ميول فى الادوار؟
بالطبع لا يمكننا ان نجعل الدلائل تتمايل مع ميول الادوار ولكن لتثبيت معادله قياسات الدلائل نستخدم قطع حديديه كشرائح صاج محمله لتعويض مسافه
بعد الدليل فى المناطق التى يكون بها زياده اتساع بين ظهر العامود والحائط اما فى الاماكن الضيقه اكثر من اللازم يمكننا الحفر بعض الشئ فى الحائط لتثبيت القطع اللازمه لتثبيت الدليل مع الحائط
كما تختلف ابعاد الدليل كالسمك والعرض بحسب الوزن الذى يتم نقله فالدليل المستخدم لمصعد اربع افراد يكون سمك الجزء الذى يتحرك فيه الكرسى للكابينه ٩ مم وسمك دليل الثقل ٥ مم اما لمصعد ٨ افراد يكون ١٦ مم لدليل الكابينه و٩ مم لدليل الثقل وتزيد الابعاد بزياده الوزن المراد تحريكه او بالاحراى بزياده مقاسات العربه
وتختلف اتجاهات الدلائل مع بعضها من ناحيه ومع فتحات الابواب فأحيانا توجد فتحات الابواب يليها دلائل العربه يليها دلائل الثقل فى
هذه الحاله يتحرك الثقل خلف العربه واحيانا تكون دلائل الحركه للثق على احد الجانبين بحيث يتحرك الثقل بجانب العربه فى هذه الحاله يلزم استخدام كمرات حديديه للفصل بينهما كطريقه لتثبيت عامود الكابينه
او يكون الثقل بعيدا عن بئر المصعد كوجوده فى مسقط نور مثلا او خارج برج مصعد معدنى فى حاله الرغبه فى تزويد ابعاد العربه للاماكن الضيقه يتم تثبيت القطع المستخدمه بطريقه ربط المسامير بالخرسانات فى الادوار او لحامها بالكمرات الحديديه الفاصله او عوارض البرج الحديدى ولكن تثبيت القصع نفسها بالعامود لا يتم بطريقه اللحام نهائيا ولكن باستخدام قفيز مخصوص لربط الاعمده بقطع التثبيت حتى لا يتحرك يمينا اويسارا اما ربط الاعمده فى بعضها فيتم بواسطه مسامير يختلف سمكها بحسب سمك الدليل
وللتذكرة لا ينبغى اجراء اى عملية لحام على الدليل ولكن كل تربيطات الدليل تتم بالمسامير حتى يكون العمل قابل للتعديل اذا تطلب الامر بدون خسائر او تلفيات
ثقل الموازنه

والان سنجيب على التساؤلات المتعلقه بثقل موازنه المصاعد مثل ماهيته وما الفائده منه وما هى مكوناته كل هذا واكثر فيما يلى
ما هو ثقل الموازنه ؟
هو وزن متحرك رأسيا عكس اتجاه حركه عربه المصعد ويتم تعليقه بحبال صلبه ويتحرك على دليل حركه ثابت مخصوص له مثل دليل حركه العربه بحيث لا يحتك بالعربه او الحائط المجاور له
ما الفائده من استخدام مثل هذا الوزن المتحرك؟
للاجابه عن هذا التساؤل لنتخيل ببساطه مدى امكانيتنا على رفع وزن متوسط او ثقيل من مستوى الارض لأعلى بواسطه ايدينا بالطبع سنحتاج لقدرة بدنيه وينعدم امكانيتنا على اداء هذه المهمه بزياده الوزن
ولكن لو تم تعليق هذا الوزن بواسطه حبل وتم تمرير الحبل على بكره سنحتاج لجهد اقل من الحاله السابقه
اما لو تم تعليق ثقل آخر فى نهايه الحبل بعد البكره وكان هذا الثقل مرتفعا عن الارض بالطبع سنحتاج جهد اقل من الحالتين السابقتين لرفع الوزن الموجود على الارض
اعتمادا على المثال السابق تكمن فائده ثقل موازنه المصعد فى امرين
اولهما ضبط موازنه العربه سواء كانت فارغه او بها جزء من الحموله المقررة لها او بها كل الحموله
فما هى الموازنه وكيفيتها ؟
لا تكون العربه فى حاله اتزان حقيقى مع الثقل ولكن نعمد الى خلخله الاتزان بطريقه مقننه اعتمادا على المعادله التاليه
وزن الثقل =وزن العربه بدون ركاب زائد نصف الحموله المقننه
او نفس المعادله بصورة مقاربه وهى صحيحه ايضا
وزن الثقل =وزن العربه بدون ركاب زائد ٤٠ ٪ من الحموله المقننه
مثال : مصعد حموله ٤ افراد وكان وزن العربه وهى خاليه من الركاب ٤٠٠ كيلوجرام فما هو وزن الثقل؟
وزن الثقل فى هذه الحاله يساوى ٤٠٠ زائد (٢*٧٥)
حيث ٤٠٠ وزن العربه و ٢ نصف عدد الافراد ال ٤ و ٧٥ هى متوسط وزن الفرد للمصعد
لماذا نعمد الى تزويد الثقل بهذا القدر ؟
بهذه الطريقه السابقه فإن محرك المصعد سيحتاج قوة لتحريك فرق الوزن بين العربه والثقل وهى بالطبع قوة اقل مما لو كان سيحرك العربه بمفردها بدون ثقل فكيف يحرك المحرك فرق الوزن
لنتخيل العربه فارغه بدون ركاب ونريد تحريكها لأعلى بدون ثقل موازنه تكون صعبه اما فى وجود الثقل المضاف اليه نصف الحموله المقررة للعربه فإن المحرك سيرفع العربه بسهوله لانه فى الاساس ينزل الثقل لأسفل ووزن الثقل اكبر من وزن العربه
اما لو جد شخصين مثلا فى العربه لمصعد اربع افراد بذلك يتساوى وزن العربه بالركاب مع وزن الثقل فسيحتاج المحرك لقوة متوسطه
اما لو وجد ٤ افراد فى نفس العربه السابقه فإن المحرك سيرفع وزن فردين فقط وليس ٤ لان الثقل اصلا به وزن فردينمضاف عليه
مما سبق يتضح ان محرك المصعد فى وجود الثقل يحرك فرق الوزن بين العربه والثقل بعكس الاوناش مثل ونش الطوب فإنه يرفع وزن فعلى بكامله
وما الفائده الثانيه من موازنه الثقل مع العربه؟
ضبط انسيابيه الحركه حتى تهرول العربه او تصاب ببطء شديد كذلك ضبط الوقوف بطريقه صحيحه على مستويات الادوار خصوصا الدور الارضى والدور الاخير
عمليا كيف تتم الموازنه
بطريقه عمليه تتم الموانه بتحريك العربه حتى تقابل الثقل غالبا فى نصف ارتفاع البئر فتكون مواجهه له تماما
يتم فتح فرمله المصعد وتحريك طارته يدويا مرة تجاه اليمين ومرة اليسار يحس الفنى بالقوة البدنيه اللازمه لكل اتجاه
يتم وضع قطع من الزهر المصبوب فى الثقل حتى تتساوى القدرة البدنيه للفنى اللازمه فى تحريك الطارة تجاه اليمين مع تجاه اليسار هنا يكون وزن الثقل يساوى وزن العربه فارغه
يتم اضافه قطع زهر على الثقل تساوى نصف وزن الحموله المراد تقنين المصعد عليها
كيف يتم تعليق الثقل؟
يتم ربط طرف الحبل الصلب فى الثقل من اعلى ويمر الحبل على طارة المحرك غى غرفه المحرك وطرف الحبل الثانى يتم ربطه بالعربه وجدير بالذكر ان الحبال وانظمه التعليق سنتناولها فى التدوينه التاليه
نعود للثقل مرة اخرى بحثا عن مكونات الثقل
مكونات الثقل
يتكون الثقل من اطار حديدى مخصوص على شكل مستطيل بالاضافه الى قطع زهر مصبوب توضع داخل الاطار بالاضافه الى كراسى تحفظ حركه الثقل مع دليل حركه الثقل
يتكون شاسيه الثقل او اطاره من اربع قطع قطعتان افقيتان واحده علويه واخرى سفليه بالاضافه الى قائمان رأسيان
القطعه العلويه عياره عن شريحتان من الحديد سمك الواحده ٨ مم يربط بينهما من المنصف ومن اسفلهما شريحه اكثر سمكا توجد بها ثقوب ذات سمك مناسب يتم بواسطه هذه الشريحه تعليق الحبال باستخدام شدادات مخصوصه لربط حبال المصعد كما يوجد بالقطعه العلويه ايضا فى كلى جانبيها اليمين واليسار ثقوب لتثبيت كراسى الثقل مع دليل حركه الثقل هذه الكراسى تشبه كثيرا كراسى الكابينه
اما القطعه السفليه فهى عبارة عن كمرة حديديه محمله او شريحتان مثل الموجودتان فى القطعه العلويه ولكن يربطهما من المنتصف ومن اسفلهما شريحه اوكمرة حديديه تستخدم فى الجلوس على مخمدات حركه الثقل التى سنتناولها فى المواضيع التاليه بالاضافه لذلك يوجد ثقوب لتثبيت كرسيين ثقل مع الدللائل
اما القائمان الجانبيان فهما كمرتين حديديتين ذات طول ٢٥٠ سم تقريبا واحده ناحيه اليمين مقابله لدليل الحركه والاخرى ناحيه الشمال مقابله ايضا للدليل يتم تربيطهما مع القطعتين العلويه والسفليه ليكتمل الاطار او شاسيه الثقل كشكل مستطيل
مع ملاحظه ان ابعاد اطار الثقل تتوقف على مقدار الوزن الذى سيحتويه ولكن عرض الاطار يقل دائما ٤ سم عن المسافه من حافه الدليل الى حافه الدليل الاخر حتى لا يحتك الاطار بالدلائل نفسها اثناء الحركه
اما قطع الزهر التى ستوضع داخل الاطار فهى مصبوبه فى قوالب تناسب ابعاد اطار الثقل وتكون محكومه داخل الاطار لاتحرج منه او تسقط اثناء الحركه ويتم تقسيم الوزن الكلى للثقل الى قطع زهر يسهل حملها وتحريكها من قبل الموردين او الفنيين اثناء التركيب
بهذا نكون اوضحنا ماهيه الثقل وفائدته وتكوينه فى الموضوع التالى سنتكلم عن حبال الجر الصلبه وانظمه التعليق . م/ أسامه سيف/ جوال : +967771187153


